«Possibile slittamento per l’apertura delle nuove tratte Galatea-Stesicoro e Borgo-Nesima a luglio o forse a settembre 2016»: è l’evenienza prospettata dal sindaco Enzo Bianco nel corso di una recente trasmissione di “Insieme” su Antenna Sicilia | La situazione nei cantieri di Cibali e Nesima
Mobilita Catania ha visitato i cantieri della metropolitana della tratta Borgo-Nesima che al momento si trovano in una fase meno avanzata rispetto agli altri: quelli delle future stazioni di Nesima e Cibali.
I cantieri sono in pieno fermento ma in effetti risulta evidente lo stadio dei lavori arretrato rispetto a quelli delle altre stazioni (Milo e San Nullo) della stessa tratta. Complicata, a meno di ulteriori forti accelerazioni, la loro ultimazione entro giugno 2016 visto che i lavori di scavo, in alcune parti del cantiere, non sono ancora stati completati. Va ricordato, comunque, che per ambe le tratte in corso di realizzazione, la data di consegna prospettata precedentemente si riferisce alla conclusione dei lavori e non all’apertura al pubblico, per la quale è prima necessario completare i collaudi di tutte le opere realizzate. Se ritardo per la messa in esercizio ci sarà, dunque, sarà tutto sommato contenuto.
A Nesima abbiamo infatti notato diversi operai impegnati nello scavo della parte nord della stazione. Nella foto si può notare la condotta della Sidra che ha comportato un ritardo dei lavori.
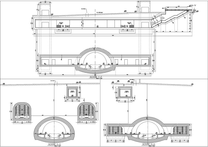
Anche presso il cantiere di Cibali abbiamo notato diversi operai al lavoro: qui i lavori sono stati rallentati dalla presenza di una falda acquifera. C’è ancora da realizzare lo scavo per il collegamento tra il mezzanino e il piano binari lato est e la chiusura del mezzanino, come si può vedere dal progetto.
Per approfondire l’argomento clicca qui:
Metropolitana di Catania | Scheda dell’opera;
Metropolitana, il cronoprogramma ufficiale







INTANTO RIVERNICIATE I TRENI !!!!!