Questa mattina, nella sede etnea della Regione Siciliana, il governatore della Sicilia, Nello Musumeci, insieme con il sindaco di Catania, Salvo Pogliese, ha illustrato il piano di riqualificazione mirato alla conversione degli spazi che deriveranno dalla demolizione dell’Ospedale Villermosa in via Gesualdo Clementi, tra piazza Dante e via Antonino di Sangiuliano, e più in generale al riassetto dell’intero rione che, com’è stato ricordato, nei prossimi anni vedrà anche la realizzazione di due nuove fermate della metropolitana: San Domenico e Vittorio Emanuele (quest’ultima prende il nome dal dismesso presidio ospedaliero omonimo).
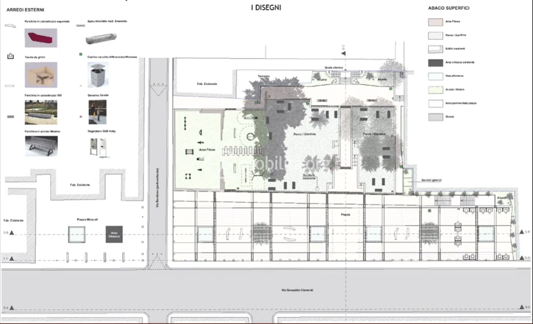
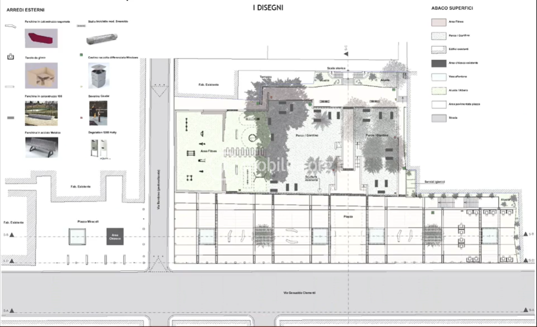
L’elaborazione del piano è stata affidata all’Architetto Scannella, il quale ha innanzitutto ricordato l’importanza di tutta l’area dell’Antico Corso, in cui oltre ai già numerosi siti di interesse storico e culturale si aggiungerà il previsto polo museale nelle aree dell’ex ospedale Vittorio Emanuele, a poca distanza, e ha descritto gli intenti progettuali per la creazione di una nuova piazza in luogo degli edifici della seconda metà del Novecento che saranno abbattuti.
Al fine di non stravolgere l’assetto urbanistico dell’area, si è optato per un grande pergolato i cui pilastri, per chi percorre la strada in senso longitudinale, ricreano l’effetto ottico di un “pieno”, in accordo con la presenza storica di volumi in queste aree: di fatto, però, si tratta di una grande struttura aperta che diviene pienamente permeabile alla vista non appena si svolge lo sguardo verso la corte del settecentesco ospedale Santa Marta, che ospiterà uffici pubblici. Tra il pergolato e il palazzo, una nuova grande piazza con ampi spazi verdi, anche da dedicare allo sport, ispirata alla corte del memorial Benjamin Franklin di Philadelphia.
I pilastri del pergolato, con largo uso di pietra e/o cemento bianco, richiameranno le caratteristiche cromatiche del capoluogo etneo. Sulla sommità, una pensilina fotovoltaica di 1200 metri quadri produrrà circa 150 kWh, la cui altezza sarà tale da non impedire la vista del prospetto settecentesco sul fondo a chi percorre via Clementi sul lato opposto.
Al suolo, le aree verdi esistenti verranno mantenute ed estese, raddoppiandone la dotazione, ottenendo 1733 metri quadri di verde (e quindi anche di preziosa superficie permeabile) in un’area che complessivamente è di poco inferiore ai 4000 metri quadri, di cui 200 destinati ad area gioco e 280 ad area fitness, e spazi dedicati al relax e alla sosta con panchine-sculture di pietra. Sottoterra verrà realizzato un serbatoio di accumulo delle acque meteoriche.
Ti potrebbe interessare:











