Sono attualmente in corso i lavori di realizzazione della tratta Nesima-Monte Po della metropolitana, con la stazione intermedia Fontana, aggiudicati alla CMC di Ravenna: la conclusione dei lavori e l’entrata in esercizio è prevista per la primavera del 2018.
Noi di Mobilita Catania abbiamo fatto visita ai cantieri della nuova tratta di metropolitana. Dopo avervi mostrato l’avanzamento dei lavori per la costruzione della galleria, vi portiamo nell’area dove si sta costruendo la stazione di Monte Po.
La stazione di Monte Po si trova in una fase più avanzata rispetto alla stazione Fontana, poiché la TBM è partita dal cantiere di Misterbianco, nei pressi di corso Carlo Marx, e intercetterà prima lo spazio di questa stazione. Si prevede che già nella seconda metà di luglio la TBM possa rompere il diaframma della stazione di Monte Po il cui scavo, profondo circa 30 metri, è stato già completato: adesso si sta lavorando agli impalcati.
Si sta completando la prima soletta di interpiano tra il piano binari e il piano mezzanino. La soluzione adottata per i solai è quella di strutture prefabbricate per non avere sostegni provvisori nella parte sottostante e poter continuare a lavorare agevolmente.
Ecco le foto che mostrano l’avanzamento del cantiere.
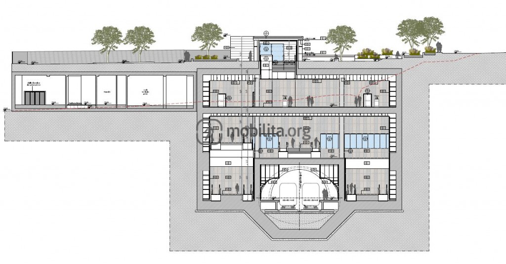
La stazione di Monte Po sarà la seconda stazione che incontreremo nella nuova tratta, provenendo da Nesima, e sarà collocata nei pressi del bivio tra la circonvallazione di Catania e il Corso Carlo Marx, via principale del polo commerciale misterbianchese.
Sarà a servizio dell’omonimo quartiere di Monte Po, collegandosi ad esso tramite due sottopassaggi pedonali con accesso sia da largo Alberto Favara (uscita A) che da piazza Maria Luisa di Gesù (uscita B). Inoltre, nella nuova piazza in superficie, che verrà creata appositamente per la nuova stazione, ci saranno due uscite (B1 e B2) e un’ulteriore uscita sarà collocata in corrispondenza del centro commerciale Scaringi (uscita C): quest’ultima non sarà interrata ma in superficie, protetta da una pensilina.
Nella nuova piazza sono previsti 32 posti auto di cui due per disabili, quindi l’area non avrà funzione di parcheggio scambiatore, che sarà demandato alla futura stazione di Misterbianco Zona Commerciale. Con la nuova piazza verrà quindi creato un nuovo spazio urbano, un luogo dove incontrarsi e sostare, uno spazio di svago, di comunicazione e di pausa riflessiva.
La caratteristica principale di questa stazione sarà la luce naturale che penetrerà all’interno grazie ad una serie di doppie altezze, cavedi e vetrate. Molte della partizioni interne saranno anch’esse in vetro, permettendo l’affaccio sui livelli inferiori e alla luce naturale di diffondersi nei vari ambienti.
Questa stazione avrà due piani intermei, il primo verrà utilizzato per creare un collegamento pedonale tra il quartiere di Monte Po e la zona commerciale di corso Carlo Marx, attualmente separata da una grande strada a scorrimento veloce; nel secondo mezzanino si potrà invece scegliere la direzione della metropolitana: Stesicoro-Palestro-Aeroporto o Misterbianco-Paternò.
Vi consigliamo di consultare i nostri recenti approfondimenti sulla tratta Nesima-Monte Po:
- Viaggio nei cantieri metro | A breve completata la prima parte di galleria Nesima-Monte Po: la TBM procede a pieno ritmo
- Metropolitana, la stazione Fontana della Nesima-Monte Po prende forma: entro l’estate l’arrivo della galleria
Ti potrebbero interessare:
-
Metropolitana di Catania | Scheda dell’opera
-
Quale futuro per la metropolitana di Catania? Da Misterbianco a Fontanarossa entro il 2023
-
Metropolitana di Catania, tratta Nesima-Monte Po: scopriamo la stazione Fontana
- Metropolitana di Catania, tratta Nesima-Monte Po: scopriamo la stazione Monte Po
-
FOTO | Svelata la nuova tratta Borgo-Nesima della metropolitana
-
“Agata” al lavoro per aprire la tratta Nesima-Monte Po entro la primavera del 2018
-
Metro, ecco dove saranno le stazioni della nuova tratta Stesicoro-Palestro: obiettivo 2019
-
Metro, tratta Misterbianco-Paternò: ecco dove sorgeranno le stazioni
-
La linea metro a nord di Catania: il progetto di Pedemontana e il nodo irrisolto dell’hinterland di Catania















